About Tbd Silver Lake Scotchtown Road
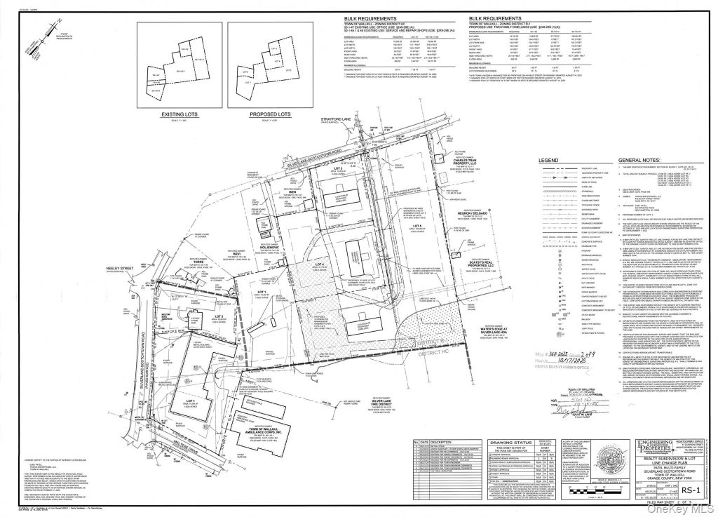
Attention Builders and Developers: Presenting a rare, fully-approved 3-lot subdivision on Silverlake Scotchtown Road in the desirable Town of Wallkill, ready for the construction of three new two-family homes. Each lot is designed to accomodate a 32x80 structure which is large enough for each unit to include 3 bedrooms, 2 baths and a 1 car garage. This is a shovel-ready project as all major hurdles have been cleared: the plans for the Patel Multi-Family Realty Subdivision have been granted Planning Board approval and the map is officially filed, eliminating months of risk and carrying costs. The infrastructure is in place and approved for connection to Municipal Water, Municipal Sewer, and Natural Gas (O&R). The location offers superior convenience, situated just off Route 211 with excellent proximity to major highways like I-84 and Route 17/I-86, and only minutes from the Metro North train, making the final units highly marketable. The approved zoning allows the buyer significant flexibility to provide their own architectural drawings to the Town, enabling them to tailor the unit sizes and finishes to the current market. A previous design concept centered around high-yield duplexes featuring spacious 3-bedroom, 2-bathroom units with a 1-car garage. This offering includes Lot 3 (+/- 0.432 acres), Lot 4 (+/- 0.867 acres), and Lot 5 (+/- 2.5 acres). For streamlined long-term management, a common/shared driveway and a common use and maintenance agreement are already prepared and in place. This is a premium opportunity for a developer looking to maximize their construction timeline and profitability with a de-risked site. Contact the listing agent today to receive all filed site plans and engineering reports (See Documents for the Filed Map)
Features of Tbd Silver Lake Scotchtown Road
| MLS® # | 928228 |
|---|---|
| Price | $525,000 |
| Bathrooms | 0.00 |
| Acres | 3.80 |
| Type | Land |
| Status | Active |
Community Information
| Address | Tbd Silver Lake Scotchtown Road |
|---|---|
| City | Middletown |
| County | Orange County |
| State | NY |
| Zip Code | 10940 |
Additional Information
Listing Details
| Office | Keller Williams Hudson Valley |
|---|---|
| Office Contact | 845-610-6065 |
