About 6000 Palisade Avenue
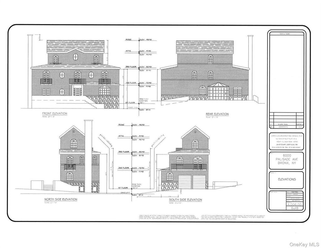
Build with current plans submitted to DOB or to your own specification in one of NYC most elite neighborhoods (North Riverdale) for profit as a developer or your own enjoyment. Plans submitted with Phase I and Phase II environmental completed including borings & Geotechnical report. (See plans attached). Current proposed plans for a 3,416 sq. ft. FIVE BEDROOM, THREE BATH one family on three levels of living space + a cellar, attic and garage parking for two cars. Proposed total sq. ft. = 3,416. (1st fl. 1,576 sq. ft.; 2nd fl. 1,296 sq. ft.; 3rd fl. 544 sq. ft.) / 1st floor - Foyer, Study, living room, kitchen, dining room, 1 bathroom, green house, back patio, and front terrace. / 2nd fl. - 3BR with multiple balconies and two full bathrooms. / 3rd fl. - two additional bedrooms both with balconies and 1 additional bathroom. BLOCK 5955, LOT 613, ZONE R1-2, ZONE AREA R1-2, ZONE MAP 1C, MAX FAR .5 / 3,849 SQ. FT. / Can be sold separately or in conjunction with two connected lots-Block 5955 lots 614 (MLS 890641) and 616 (MLS 892411). These lots are located in next to other million dollar properties. Two of which are vacant.
Features of 6000 Palisade Avenue
| MLS® # | 892411 |
|---|---|
| Price | $599,000 |
| Bathrooms | 0.00 |
| Acres | 0.19 |
| Type | Land |
| Status | Active |
Community Information
| Address | 6000 Palisade Avenue |
|---|---|
| City | Bronx |
| County | Bronx County |
| State | NY |
| Zip Code | 10471 |
Additional Information
Listing Details
| Office | Keller Williams Realty NYC Grp |
|---|---|
| Office Contact | 718-697-6800 |
