100-15 34th Avenue, Corona, NY

$2,100,000

Previous Next

6,000

Square feet

0.09

Acres

About 100-15 34th Avenue

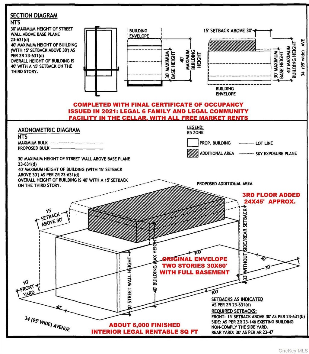
Fully Rebuilt and Renovated in 2021, this solid brick multifamily with community facility and with all market rents (no rent control, no rent stabilization)is located in convenient Corona, close to the no. 7 train, and right on 34th Ave. The property is a Legal 6 family plus Community facility with Three vacancies currently provided. All tenants pay their own heat and utilities. Situated in up an coming area that shows a high concentration of new development, the proximity to the Willets Point Site with all its amenities and features will add to its intrinsic value. The building is in close proximity to all modes of transportation, expressways, subway, express buses, La Guardia Airport, shopping, schools, parks, restaurants and entertainment. It is also in an area with a very healthy rental market. The original 1926 building was gutted out, rebuilt and expanded in 2021 when the new certificate of occupancy was obtained. Currently it features 6 residential units and a legal Community Facility in the Basement, currently rented to a non profit organization). The first floor features two large 1 Bedroom apartments (1L and 1R), featuring their own gas fired circulating hot water heating systems, in unit washer driers, new kitchens and bathrooms, each with access to their private backyard. These two units are large and could be easily converted to Junior 4 Two Bedrooms. Unit 1L is vacant. On the second floor there are two units currently used as two Jr4 two bedrooms, 2L and 2R (with living room and kitchen combos), similar heating and features than the first floor units and with rear facing balconies. Unit 2R is currently vacant. The third floor unit features two smaller one bedroom units with large south facing terraces and similar heating and features than the other 4 units. Unit 3R is currently vacant. There is a private driveway and an attached 1 car garage. As a building substantially rebuilt, it is not rent regulated (no rent control and no rent stabilization). The expenses, available on request, are low and for example, just the real estate taxes are covered by the Community Facility current rent. For comparison purposes and to illustrate the uniqueness of this opportunity it offers a better return than owning two 3 family homes together, being easier to manage and with lower expenses. With approximately 6,000 sq ft of interior renovated space, and with All legal income this property offers an opportunity to the Investor of vision and a chance to those who want to build Generational Wealth or those seeking a qualified property for a 1031 like-kind Exchange. Special financing available to qualified investors. Shown by appointment only.

Features of 100-15 34th Avenue

MLS® # 879607
Price $2,100,000
Bathrooms 0.00
Square Footage 6,000
Acres 0.09
Year Built 1926
Type Commercial
Sub-Type Multi Family
Status Active

Community Information

Address 100-15 34th Avenue
City Corona
County Queens
State NY
Zip Code 11368

Additional Information

Click here to register or sign in to view more Details and Taxes!!

Amenities

Utilities Electricity Connected, Natural Gas Connected, Water Connected
Parking Spaces 1
Parking Garage
Is Waterfront No
Has Pool No

Interior

Interior Hardwood
Appliances Dryer, Gas Range, Refrigerator, Washer
Heating Baseboard
Cooling Multi Units
Fireplace No
# of Stories 3

Exterior

Construction Brick

Additional Information

Short Sale No
RE / Bank Owned No
Taxes (total) $25,610

Listing Details

OfficeXzeller Realty

Listing Map

Request a Showing

Provide a valid email address.
When would you like to view this property?