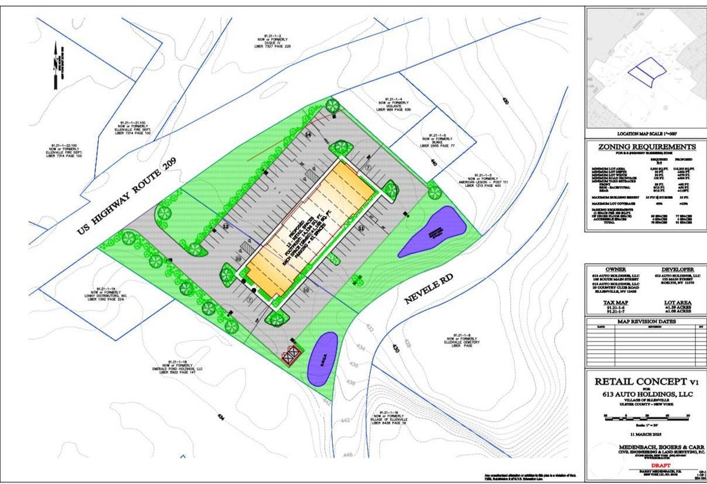
About 188 S Main Street
Prime redevelopment opportunity in Ellenville, NY! The property offers significant investment potential, with a conceptual plan in place for a hotel and retail pads. Zoned B3, it allows for various permitted uses, including retail businesses, restaurants, professional offices, medical clinics, and personal service establishments. Strategically located in a thriving commercial area near a golf course, this site provides excellent visibility and accessibility. Currently, an active welding business occupies the site, generating monthly rental income, and two mobile homes are on the property. A feasibility study is available to buyers upon request, offering valuable insights into development potential. Don’t miss this rare opportunity to invest in Ellenville’s growing market! This listing is two parcels: 1.59 acres and 1.08 for a total of 2.67 acres. Please see agent remarks for Tax information.
Features of 188 S Main Street
| MLS® # | 821028 |
|---|---|
| Price | $599,000 |
| Bathrooms | 0.00 |
| Acres | 2.67 |
| Type | Commercial |
| Sub-Type | Mixed Use |
| Status | Active |
Community Information
| Address | 188 S Main Street |
|---|---|
| City | Ellenville |
| County | Ulster County |
| State | NY |
| Zip Code | 12428 |
Additional Information
Listing Details
| Office | Keller Williams Hudson Valley |
|---|---|
| Office Contact | 845-610-6065 |
